咖啡廳“單元”是工廠在基輔的振興項目之一,也是我們的團隊正在實施的一個項目。這家咖啡館是為那些在IT學校里學習的學生提供的。 一開始我們沒有打算建造它。但在IT學校項目工作時,我們了解到,在重建的建筑中,沒有足夠的空間供一個大食堂或自助餐廳使用。所以,我們希望投資者單獨建造咖啡館。

我們希望能夠嘗試使用海運集裝箱,在草圖之后,我們得到批準準備詳細文件。咖啡廳成了一個特殊的名片和亮點。居民、學生和其他人在Unit City(振興區域的名字)上吃飯,開會,討論業務,或結交朋友。

在 Unit Cafe 項目的實施中使用了14個海運集裝箱,其中一個是垂直的,里面有一個樓梯。二樓有一個位于底層的控制臺上的開放式露臺。二樓的控制臺為7.5米。它有一個很好的朝向學校和商業中心的視野。一側的水面朝向橋的入口處。


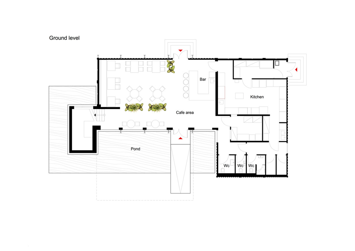
室內外有一些共同之處。一樓也部分涂上綠色。在一樓和二樓有舒適的沙發、桌椅、椅子和植物。一樓有廚房,盥洗室和廚房。咖啡廳總面積為275平方米。





圖紙

一層平面圖

二層平面圖
項目信息
建筑師:TSEH建筑事務所
位置:烏克蘭 基輔
主持建筑師:Denis Zadniprovskyi,Iurii larionov,Antonina Kaplia
面積:275.0平方米
項目年份:2016
攝影師:Mihail Cherny - Evgen Zuzovsky
顧客:Vasyl Khmelnytsky的基金 - K.Fund
視頻:Yegor Troyanovsky(導演),Olga Beskhmelnitsyna(制作),Koloah(音樂)
